LS/GX系列螺旋輸送機產品概述:
LS型螺旋輸送機等效采用ISO1050-75標準,設計制造符合ZBJ81005.1~2-88《 LS螺旋輸送機》**標準。LS型螺旋輸送機直徑由100mm~1250mm,共十二種規格,分為單驅動和雙驅動兩種形式,單驅動螺旋機長度可達40m(特大型30m),雙驅動螺旋機采用中間斷開軸結構,長度可達80m(特大型60m),螺旋機長度每 0.5m 一檔,可根據需要選定,螺旋機頭部軸承、尾部軸承置于殼體外部減少了灰塵對軸承室的侵入提高了螺旋機關鍵件的使用壽命。中間吊軸承采用滾動、滑動可互換的兩種結構,阻力小、密封性強、耐磨性好。滑動軸承的軸瓦有粉末冶金、尼龍和巴氏合金等多種材料供用戶根據不同的場合選用。吊軸承機外側置式油杯,便于集中加油潤滑。進出料口位置布置靈活,并增設電動型出料口,便于自動控制,還可根據用戶要求,配置測速報警裝置。
LS型螺旋機一直被廣泛用于國民經濟各部門,如建材、冶金、化工、電力、煤炭、機械、輕工、糧食及食品行業,適宜輸送粉狀、顆粒狀、小塊狀物料,如水泥、煤粉、糧食、化肥、灰渣、沙子、焦炭等.不宜輸送易變質、粘性大、易結塊的物料,LS螺旋輸送機工作環境溫度通常為-20~40℃,輸送物料的溫度一般為-20~80℃,LS螺旋輸送機適宜水平和小傾角布置,傾角以不超過15°為宜,如傾斜角度過大請選用GX系列螺旋輸送機,或與我公司技術部門聯系進行單獨設計。
LS/GX系列螺旋輸送機主要特點及工作原理:
1.承載能力大、可靠。
2.適應性強、安裝維修方便、壽命長。
3.整機體積小、轉速高、確保快速均勻輸送。
4.密封性好、外殼采用無縫鋼管制作,端部采用法蘭互相連接成一體,剛性好。
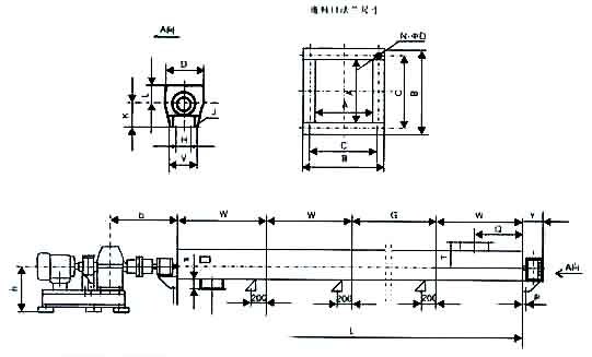
LS/GX系列螺旋輸送機安裝示意圖:
LS\GX系列螺旋輸送機主要技術參數:
LS型 | 100 | 160 | 200 | 250 | 315 | 400 | 500 | 630 | 800 | 1000 | 1250 |
GX型 |
|
| 200 | 250 | 300 | 400 | 500 |
|
|
|
|
螺旋直徑(mm) | 100 | 160 | 200 | 250 | 315 | 400 | 500 | 630 | 800 | 1000 | 1250 |
螺距(mm) | 100 | 160 | 200 | 250 | 315 | 355 | 400 | 450 | 500 | 560 | 630 |
轉速(r/min) | 140 | 120 | 90 | 90 | 75 | 75 | 60 | 60 | 45 | 35 | 30 |
輸送量QΦ=0.33(m3/h) | 2.2 | 7.6 | 11 | 22 | 36.4 | 66.1 | 93.1 | 160 | 223 | 304 | 458 |
功率Pd 1=10m(KW) | 1.1 | 1.5 | 2.2 | 2.4 | 3.2 | 5.1 | 4.1 | 8.6 | 12 | 16 | 24.4 |
功率Pd 1=30m(KW) | 1.6 | 2.8 | 3.2 | 5.3 | 8.4 | 11 | 15.3 | 25.9 | 36 | 48 | 73.3 |
轉速(r/min) | 120 | 90 | 75 | 75 | 60 | 60 | 45 | 45 | 35 | 30 | 20 |
輸送量QΦ=0.33(m3/h) | 1.9 | 5.7 | 18 | 18 | 29.1 | 52.9 | 69.8 | 125 | 174 | 261 | 305 |
功率Pd 1=10m(KW) | 1.0 | 1.3 | 2.1 | 2.1 | 2.9 | 4.1 | 4.7 | 6.8 | 9.4 | 14.1 | 16.5 |
功率Pd 1=30m(KW) | 1.5 | 2.3 | 4.5 | 4.5 | 7 | 8.9 | 11.6 | 20.4 | 28.3 | 42.2 | 49.5 |
轉速(r/min) | 90 |
服務承諾
如果電話中不能幫您解決問題,省內24小時內(省外三天之內)幫助用戶解決所需!
售前:根據客戶需要,以**資訊指導購買產品;
售中:服務熱情周到,幫助解答疑難問題;
售后:指導安裝、調試,確保正常運轉。
服務規范化
1、撥打我們的售后服務電話:0373-3686558有問必答;
2、預約設計:購前為您選擇設計方案;
3、免費指導安裝調試;
4、星級網絡24小時服務到位;
5、保修期,振動電機保修半年,整機終身維修;
6、電話回訪,跟蹤服務,使我們的設備為您解決篩分難題。
組織**化
為了提高服務,使服務及時到位,我們配備了一支**化的服務隊伍,做到**咨詢、**設計、指導安裝、**維護保養、**維修,將我們的服務提高到一個新的高度。
感謝您使用我公司的產品。當您在使用過程中,遇到什么問題,有什么建議;請告訴我們,我公司隨時為您提供服務,并解答問題。
當您需要特殊用途的電機、特殊型號的篩機時,請與我們聯系,我們的**技術人員將為您設計出符合您要求的產品。